Year: 1991 Language: English Author: ISO Publisher: ISA ISBN: 1-55617-227-3 Format: PDF Quality: eBook Pages count: 22 Description: Scope The standard is intended to provide a uniform method of diagramming the physical interconnections of the instruments of a loop and to provide related information that is required for the installation of the instruments. The standard covers pneumatic, fluidic, electric, electronic, and other types of instruments that are interconnected to form a loop. The standard is for the use of instrumentation system designers, construction people, maintenance people, and others who may be concerned with the installation arrangements for the various instrument loops of a project. Purpose Ascertain how widespread is the use of instrument loop diagrams, and determine the degree of uniformity in symbology, semantics, and presentation among those loop diagrams. Establish whether development of a standard is practical. Recommend future action by the S&P Department. Additional info: Despite its age, this is the most recent version of the standard.
Contents
Screenshots
5
ANSI-ISA-5.4-1991 Instrument Loop Diagrams - ISA [1991].pdf
You cannot post new topics in this forum You cannot reply to topics in this forum You cannot edit your posts in this forum You cannot delete your posts in this forum You cannot vote in polls in this forum You cannot attach files in this forum You cannot download files in this forum
ANSI/ISA-5.4-1991 Instrument Loop Diagrams
Language: English
Author: ISO
Publisher: ISA
ISBN: 1-55617-227-3
Format: PDF
Quality: eBook
Pages count: 22
Description:
Scope
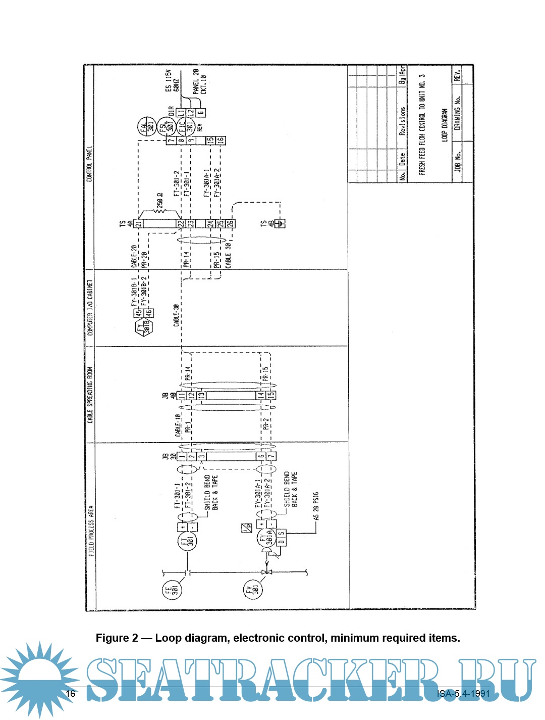
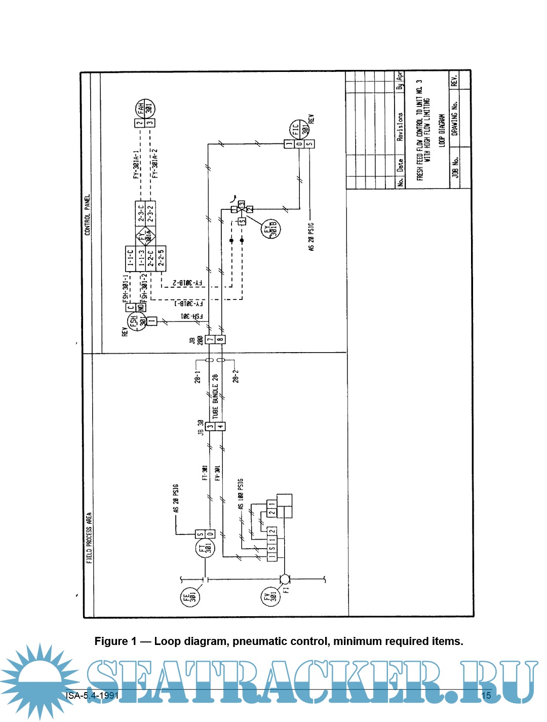
The standard is intended to provide a uniform method of diagramming the physical interconnections of the instruments of a loop and to provide related information that is required for the installation of the instruments. The standard covers pneumatic, fluidic, electric, electronic, and other types of instruments that are interconnected to form a loop.
The standard is for the use of instrumentation system designers, construction people, maintenance people, and others who may be concerned with the installation arrangements for the various instrument loops of a project.
Purpose
Ascertain how widespread is the use of instrument loop diagrams, and determine the degree of uniformity in symbology, semantics, and presentation among those loop diagrams.
Establish whether development of a standard is practical.
Recommend future action by the S&P Department.
Additional info: Despite its age, this is the most recent version of the standard.
Contents
Screenshots
ANSI-ISA-5.4-1991 Instrument Loop Diagrams - ISA [1991].pdf
Download [2 KB]
Share