chayan_09 ®   24-Nov-2018 10:43

Design Guide for Ship Structural Details


Year: 1990
Language: english
Author: C. R. Jordan & R.P. Kmmpen, Jr.
Genre: Practical guide
Format: PDF
Quality: Scanned pages + text layer
Pages count: 142
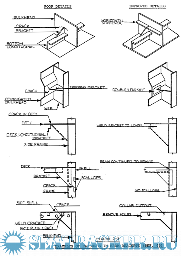
Description: This report provides a designer with a guide to the selection of structural details for both naval and commercial ships. The details in the guide combine good service experience with reasonable construction costs. A simple method for determining approximate construction time for a wide range of detail sizes is presented. Details which have not performed well are also discussed to illustrate problem areas to avoid.

Contents

Screenshots

Design Guide for Ship Structural Details - Ship Structure Comitee.pdf

Download [6 KB]

Thank U
Reply
refresh list

Similar releases

A Structural Design for An Arbitrary Transverse Section of A Ship - Thomas Arthur Marnane [1957,…
Practical Ship Design - David G. M. Watson [1998, PDF]
Design and detailing for high speed Aluminium vessels Design guide and training - Ship Structure…
Propulsion Trends in Container Vessels - MAN Diesel & Turbo [2013, PDF]
Reduction of S-N Curves for Ship Structural Details - Stambaugh K. at all [1992, PDF]
Muckle's Naval Architecture - By W. Muckle and D A Taylor [2013, PDF]
Marine Structural Design Calculations - Mohamed A. El-Reedy [2015, PDF]
Guidance on Structural Reliability Analysis of Marine Structures - Professor P.K. Das [2003, PDF]
An Analysis of the Sailing Efficiency of the Junk Yacht Boleh - Happs J. [2013, PDF]
Collisions: How to Avoid Them - The North of England P&I Association [2013, PDF]
LOAD MORE
  • Reply

The time now is: Today 22:07

All times are GMT + 3 Hours