twicer ®   08-Mar-2022 17:11

American Electricians' Handbook


Year: 2013
Language: english
Author: Terrell Croft
Genre: Technical book
Publisher: McGraw-Hill Education
Edition: 16th (16 Sept. 2013)
ISBN: 9780071798808
Format: EPUB/PDF
Quality: eBook
Pages count: Multiple (1712 + 2121)
Description: Publisher's Note: Products purchased from Third Party sellers are not guaranteed by the publisher for quality, authenticity, or access to any online entitlements included with the product.
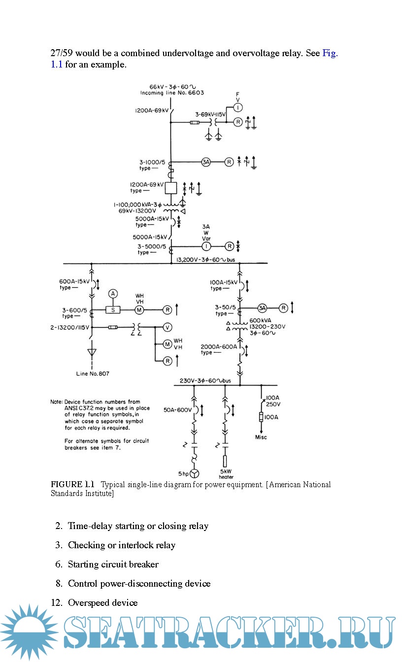
For a century, the American Electricians' Handbook has served as the definitive industry reference for information on designing, installing, operating, and maintaining electrical systems and equipment. The Sixteenth Edition is revised to complywith the 2011 National Electrical Code and the 2012 National Electrical Safety Code, and covers current energy-efficient technologies, such as photovoltaics and induction lighting. Detailed photos, diagrams, charts, tables, and calculations are included throughout. This practical, on-the-job resource is a must-have tool for every professional electrician.
Covers:
Fundamentals
Properties and splicing of conductors
Circuits and circuit calculations
General electrical equipment and batteries
Transformers
Solid-state devices and circuits
Generators and motors
Outside distribution
Interior wiring
Electric lighting
Optical fiber
Wiring and design tables

update for

:

American Electricians' Handbook - Terrell Croft [2009, PDF]

Author: Terrell Croft | Year: 2009 | Language: english | Format: PDF | Quality: eBook | Pages count: 1778 | Genre: Technical book

Open released by SerTan


:

Contents

Screenshots

American Electricians Handbook 16Ed 2013

Download [47 KB]

Thank U
Reply
refresh list

Similar releases

American Electricians' Handbook - Terrell Croft [2009, PDF]
Industrial Electricity and Motor Controls - Rex Miller, Mark Miller [2013, PDF]
Electrical and Electronics Engineering eBooks [PDF]
Electrician’s Pocket Manual - Rex Miller [2005, PDF]
Pressure Vessels: ASME Code Simplified - J. Phillip Ellenberger [2004, PDF]
3G Handy Guide: Electrician - 3G E-learning [2023, PDF]
Foundation Course For Electrical Drafter - 3G E-Learning [2021, PDF]
UGLY'S Electrical References - George V. Hart [2014, PDF]
Electrician's Exam Study Guide - Kimberley Keller [2013, PDF]
Electrician's Guide to Control and Monitoring Systems - Albert F. Cutter Sr. [2010, PDF]
LOAD MORE
  • Reply

The time now is: Today 18:49

All times are GMT + 3 Hours