LR Rules and Regulations for the Classification of Ships-July 2020
Year: 2020 Language: English Author: Lloyd’s Register(LR) Genre: Convention (rules) Edition: July,2020 Format: PDF Quality: eBook Pages count: 1794 Description: Ship classification may be regarded as the development and worldwide implementation of published Rules and Regulations which, in conjunction with proper care and conduct on the part of the Owner and operator, will provide for: (a) the structural strength of (and where necessary the watertight integrity of) all essential parts of the hull and its appendages; (b) the safety and reliability of the propulsion and steering systems; and (c) the effectiveness of those other features and auxiliary systems which have been built into the ship in order to establish and maintain basic conditions on board whereby appropriate cargoes and personnel can be safely carried whilst the ship is at sea, at anchor, or moored in harbour. Lloyd's Register (LR) maintains these provisions by way of the periodical visits by its Surveyors to the ship as defined in the Regulations in order to ascertain that the vessel currently complies with those Rules and Regulations. Should significant defects become apparent or damages be sustained between the relevant visits by the Surveyors, the Owner and operator are required to inform LR without delay. Similarly any modification which would affect Class must receive prior approval by LR. A ship is said to be in Class when the Rules and Regulations which pertain to it have, in the opinion of LR, been complied with, or when special dispensation from compliance has been granted by LR. It should be appreciated that, in general, classification Rules and Regulations do not cover such matters as the ship's floatational stability, life-saving appliances, and structural fire protection, detection and extinction arrangements where these are covered by the International Convention for the Safety of Life at Sea, 1974, its Protocol of 1978, and the amendments thereto. Nor do they cover pollution prevention arrangements where these are covered by the International Convention for the Prevention of Pollution from Ships, 1973, its protocol of 1978, and the amendments thereto. Nor do they protect personnel on board from dangers connected with their own actions or movement around the ship. This is because the handling of these aspects is the prerogative of the National Authority with which the ship is registered. A great many of these authorities, however, delegate such responsibilities to the Classification Societies who then undertake them in accordance with agreed procedures.
You cannot post new topics in this forum You cannot reply to topics in this forum You cannot edit your posts in this forum You cannot delete your posts in this forum You cannot vote in polls in this forum You cannot attach files in this forum You cannot download files in this forum
LR Rules and Regulations for the Classification of Ships-July 2020
Language: English
Author: Lloyd’s Register(LR)
Genre: Convention (rules)
Edition: July,2020
Format: PDF
Quality: eBook
Pages count: 1794
Description: Ship classification may be regarded as the development and worldwide implementation of published Rules and Regulations which,
in conjunction with proper care and conduct on the part of the Owner and operator, will provide for:
(a) the structural strength of (and where necessary the watertight integrity of) all essential parts of the hull and its appendages;
(b) the safety and reliability of the propulsion and steering systems; and
(c) the effectiveness of those other features and auxiliary systems which have been built into the ship in order to establish and
maintain basic conditions on board whereby appropriate cargoes and personnel can be safely carried whilst the ship is at
sea, at anchor, or moored in harbour.
Lloyd's Register (LR) maintains these provisions by way of the periodical visits by its Surveyors to the ship as defined in the
Regulations in order to ascertain that the vessel currently complies with those Rules and Regulations. Should significant defects
become apparent or damages be sustained between the relevant visits by the Surveyors, the Owner and operator are required to
inform LR without delay. Similarly any modification which would affect Class must receive prior approval by LR.
A ship is said to be in Class when the Rules and Regulations which pertain to it have, in the opinion of LR, been complied with, or
when special dispensation from compliance has been granted by LR.
It should be appreciated that, in general, classification Rules and Regulations do not cover such matters as the ship's floatational
stability, life-saving appliances, and structural fire protection, detection and extinction arrangements where these are covered by
the International Convention for the Safety of Life at Sea, 1974, its Protocol of 1978, and the amendments thereto. Nor do they
cover pollution prevention arrangements where these are covered by the International Convention for the Prevention of Pollution
from Ships, 1973, its protocol of 1978, and the amendments thereto. Nor do they protect personnel on board from dangers
connected with their own actions or movement around the ship. This is because the handling of these aspects is the prerogative
of the National Authority with which the ship is registered. A great many of these authorities, however, delegate such
responsibilities to the Classification Societies who then undertake them in accordance with agreed procedures.
Contents
Screenshots
Notice from: zxc [translate]
https://seatracker.xyz/viewtopic.php?t=65949
LR_Rules_and_Regulations_for_the_Classification_of_Ships_2020-07.pdf
Download [18 KB]
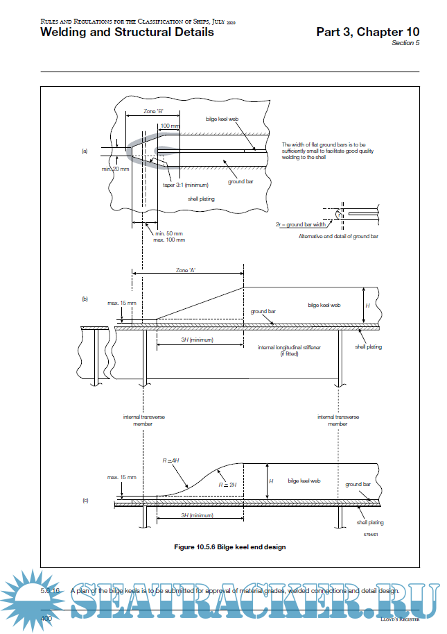
Share