Year: 2002 Language: english Author: KRUPP FORDERTECHNIK Genre: DOCUMENTATION Publisher: KRUPP FORDERTECHNIK Format: PDF Quality: Scanned pages Number of pages: 167 Description: DECK CRANE DOCUMENTATION COMPONENTS 7/8377 DOUBLE DECK CRANE EH 2x25t - 22m DECK CRANE DOCUMENTATION I 1.0 DESCRIPTION OF ELECTRIC SYSTEM 1.1 Technical data 1.2 Supplies 1.3 Control 1.3.1 General 1.3.2 Double crane operation 1.3.3 Switchgear and sensors 1.4 Programmable logic control 1.4.1 Hardware 1.4.2 Software 1.5 Valve Current Generation 1.6 Fault Removal and Fault Announcement Device 1.7_ Emergency Operation 1.8 ftfte'ntenance 1.9 Wiring Diagrams Part-No. 2 350 154 2.0 SPARE PARTS LISTS - ELECTRIC SYSTEM DECK CRANE DOCUMENTATION II 3.0 DESCRIPTION OF HYDRAULIC SYSTEM WITH DIAGRAM 3.1 SPARE PARTS LISTS - HYDR. SYSTEM WITH DIAGRAM 3.2 SPARE PARTS - HYDR. SYSTEM - COMPONENTS 3.3 SPARE PARTS DOCUMENTS -PURCHASED PARTS
Contents
DECK CRANE DOCUMENTATION COMPONENTS 7/8377 DOUBLE DECK CRANE EH 2x25t - 2 2m 1.0 DECK CRANE DOCUMENTATION I DESCRIPTION OF ELECTRIC SYSTEM • 1.1 Technical data 1.2 Supplies 1.3 Control 1.3.1 General 1.3.2 Double crane operation 1.3.3 Switchgear and Sensors 1.4 Programmable Logic Control 1.4.1 Hardware 1.4.2 Software 1.5 Valve Current Generation 1.6 Fault Removal and Fault Announcement Device 1.7 Emergency Operation 1.8 Maintenance 1.9 Wiring Diagrams Part - No. 2 350 154 1.1 TECHNICAL DATA The crane's electrical equipment conforms to the pre -scriptions of the classification, societies. It is designed for operation in ambient temperatures rang ing from -30° to +45°C. SuppIV voltages Main supply Auxiliary supply Control voltage 3/PEN 50 Hz, 380 V 2 50 Hz; 220 V 24 V = Motor list Pump drive : 2 X 125 kW - si, 4 poles Feed oil pump : 2 x 9,0 kW - si. 4 poles Machinery space fan : 2 x 1,3 kW - Si, 2 poles Hydr. oil cooler : 2 x 0,9 kW - Si, 4 poles Gear oil cooler : 2 x 0,37 kW - Si, 4 poles In the description of the electrical equipment the assembly groups and components of the master crane are marked with an "M" (e .g. =M60-M1 : pump drive motor); for the slave crane the same motor is described as =S60-M1. The respective position in the master crane is marked with digit "I" (e.g. +A1.J : jib); in the slave crane with digit "211; the jib position in the slave crane is designated by +A2.J. The following description uses the master crane identifications . 1.2 SUPPLIES Before starting any work on the crane's electrical equipment, all power supplies must be cut off and it must be checked that the installation is no longer live. Power supply of the crane is ensured by a slipring body. The 380 V - supply leads from the slipring body to the terminals of contactor =M05-K1 in the switch cubicle "star/delta control". The 220 V - supply leads from the slipring body to the circuit breakers in cubicle "Distribution of lighting" Contactor =M05-K1 acts as master switch and is actuated over switch SI in the door of cubicle "Star/delta con trol". For this, the switch must be turned into "START" position. After releasing the switch, it will spring back to "1"-position. Before leaving the crane, this switch should be switched to " 0 "-position. If the control levers are shifted before "readiness for operation" is signalled, fault monitor 06 responds and blocks crane operation. Depending on the oil temperature in the hoisting circuit, the machinery space fan and the hydraulic oil cooler are switched on and off during operation. The crane is controlled by a Programmable Logic Controller (PLC). In the PLC digital input signals of the switchgear (contactor contacts, master switch contacts, limit switches etc.) and the analogue values of the speed setting transmitters control lever potentialme-ters) and of the sensors (pressure and temperature transformers) are worked off according to the software and the respective outlets of the PLC which switch on the signal lamps, contactors, or solenoid valves are energized. The PLC outlets give the calculated valve current value for adjustment of the pumps as a data record to the valve current control card. Control voltage is 24 V D.C. , it is generated with the 3-phase current network bridge = M02-U1. In addition a D.C. voltage of ±5 V is needed for feeding the reference value potentialmeters in the masters switched and the valve current control card. This D.C. voltage is generated with the electronic power supply M02-U2. 1.3 Control 1.3.1 Genera 1 The crane movements are carried out by hydraulic motors . Control of these drives is electro-hydraulic. During operation the pump drive motor runs permanently at constant speed. Over a splitter gearbox it drives 3 hydraulic pumps which supply the hoisting, luffing and slewing gears. The pumps are controlled over electro-hydraulic energizing units with 2 proportional solenoid valves each. Without an energizing signal the pumps run with zero stroke and do not deliver any oil. The solenoid valve amperage determines the direction of delivery and the delivery rate of the pumps. The valve current thus allows infinitely variable adjustment of the pumps (adjustment of the discharge rate); i.e. it allows controlling the speed of the respective drive. The valve current ist abt. 200-600 mA. A hydraulic variable displacement motor in the hoisting gear circuit allows moving less heavy loads of the empty hook at increased speed. This motor is controlled by a proportional solenoid valve of 200 - 600 mA. The amount by which the motor is adjusted depends on the load on the hoisting gear which is picked up by a pressure sensor. In addition to pump adjustment solenoid valves are energized for the brakes of the drives and the reversing valve for operation of the luffing and slewing gears. - Please also refer to the description of the hydraulic system. The cranes can be operated separately in single operation. In double (GEMINI) operation the cranes are connected in parallel and controlled from the A-Tower (master crane). The drives are then synchronized. In the description of the electrical system the guiding crane is called ’’master crane", the crane following is "slave". In the component list the cranes are designated with M of S respectively. When pressure switch = M06-S12 (drives ON) is actuated, contactor = M61-K1 responds, starting feed oil pump. After 8 secs time relay = M09-K1 responds, starting the pump drive motor over contactors = M60-K1 and K2. This motor is started over star/delta. Change-overtime in 4-5 secs. When the drive motor runs in delta and there is no fault announcement = M07-H4 (ready for operation) will light up and the crane can then be operated by shifting the control levers.
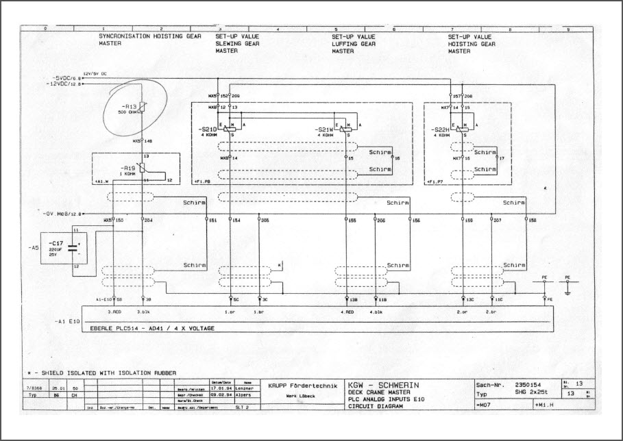
More information
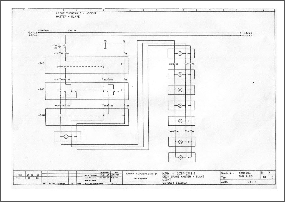
1.3 Control 1.3.2 Double crane operation 1. General remarks 2. Actuator energization 3 • Monitoring 4. Control 5. Adjusting the synchronism transmitters 1. General remarks Both cranes can be controlled simultaneously from a single control station in the double crane mode. The motions of the two cranes are synchronized. The crane column from which the cranes are controlled in the double crane mode is called the master crane. The other is the slave crane. The two cranes can only be controlled from the master crane in the double crane mode. The slave crane control functions are blocked. 2. Actuator energization The PLC program suppresses the command transmitters (joystick) outputs of the slave crane in the double crane mode. Only the "START" and "STOP" buttons retain their functions. The control signals from the master crane joysticks are copied into the slave crane at the command level. Example: If the hoisting joystick in the slave crane is moved in the direction "HOIST", 1ight-emitting diode (LED) 2.2 at the input of input card E02 lights up in the PLC unit, but no crane motion is initiated. However, movement of the hoisting joystick in the master crane in the direction "LOWER" initiates the lowering motion in both cranes. The PLC program copies the set points defined by the joystick potentiometers into the drive control system of the slave crane in just the way as the control signals, so both cranes are activated synchronously. 3. Monitoring In the double crane mode, the PLC program connects the monitoring signals from both cranes in series. In other words, if the monitoring system triggers a function in one crane, the appropriate cut-outs are actuated on both. Examples: a) If an emergency OFF button is pressed in the master or the slave crane, the main contactors immediately drop off in both the master and the slave crane. 1. 3 Control 1.3.2 Double crane operation b) If a pressure switch monitoring the hydraulic system (e.g. M-S9, "Luffing gear pressure, master orane") trips, the drives of both cranes are immediately switched off. c) If a limit switch is approached, the contact of the first limit switch to be actuated stops the motion of both cranes. 4. Control As described in chapter 2, both cranes are controlled synchronously in the double crane mode. Since external factors and component tolerances can lead to loss of synchronism in the hoisting and luffing gears, these two systems are equipped with a distance monitoring system to check the synchronism of the cranes and re-adjust the drives in the event of discrepancies. The exact position of the drive concerned is ascertained by distance sensors (potentiometers) in the limit switches. The analog input circuits of the PLC transform the potentiometer output voltages into digital values with a resolution of 12 bits. In the computer program of the control system, the values representing the positions of the two luffing or hoisting gears are compared, i.e. the difference is calculated from the input data. If the difference is less than 25, the program regards the positions as identical. The double crane operation lamp (synchronism indicator) lights up if the luffing or hoisting gears respectively are in identical positions. The control system keeps trying to reduce the difference to zero during operation. It does this by increasing or reducing the desired value input (output from the joystick potentiometers) so that the leading (faster) crane is braked and the lagging (slower) one is accelerated. The magnitude of the correction values varies with the magnitude of the discrepancy. Minor discrepancies lead to small correction values, which increase in 10 mA increments up to the maximum correction of ±25 % of the desired value input. If the value of the discrepancy is larger than 50, for instance due to a drive fault, the drives are gradually braked and the synchronism indicator goes out. If the discrepancy is greater than 70, the drive stops immediately (emergency STOP). The fault message "48" or "49" is shown on the fault display in either case. 1.3 Control 1.3.2 Double crane operation 5. Adjusting the synchronism transmitters Readjust the* synchronism transmitters if the neutral point of the synchronism control system for the double crane mode has changed (e.g. if the hook spreader is not horizontal). See the description of fault signals 48 and 49 for identification of asynchronous control states. The procedure for readjusting the luffing gear synchronism transmitters is described below. The procedure for hoisting gears is analogous. The reference point (RP) for voltage measurements is ±0 V of the DC supply voltage. 1. Luff both jibs into their highest positions (minimum outreach). The two jibs must be parallel to each other. 2. Measure the voltages at the outputs of adjustment resistors RIO and R12*. They should be between 10 and 12 V and must be identical. Adjust RIO or R12 if they are not. 3. Measure the output voltages of the synchronism transmitters (potentiometers in limit switches) at MX5-195 and MX5-117 on page =M07. Sh. 11 and 12. The voltages should be about 0.5 V. If they are not, adjust them by turning the potentiometer casing. If the voltages differ greatly from 0.5 V, repeat the procedure described in point 2 above after rough adjustment of the potentiometers. The two potentiometer output voltages now have to be balanced (fine adjustment). Their absolute value (about 0.5 V) is relatively uncritical, but it is important that both potentiometer voltages are identical, for instance 0.487 V. Measure this voltage at the potentiometer itself, i.e. between terminals 11 and 12. The output voltages are adjusted by slowly turning the potentiometer casings. Remember that the voltage can change when the casing is tightened. If this happens, it must be readjusted again. 4. Now luff both jibs out to maximum outreach. The two jibs must again be parallel to each other. 5. Measure the synchronism transmitter output voltages at MX5-195 and MX5-117. Use adjustment resistors RIO and R12 to vary these voltages until they are exactly equal. Their value must not exceed 9.5 v. 6. Close the casing of the limit switch. The synchronism transmitters are not correctly set. *On drawing sheet =M07. Sh. 11 and 12 1.3 CONTROL 1.3.3 SWITCHGEAR AND SENSORS The power switchgear consists of the contactors =M05~Kl (mains contactor) , =M60-K1 (star contactor) , and =M60-K2 (delta contactor). These contacts have a control voltage of 380 V. =M05~K1 is actuated directly from master switch SI (in series with the EMERGENCY-OFF chain) . =M60-K1 and K2 are switched over time relay =M09-K1. Contactors =M61-K1 and =M6 5-K1 have a control voltage of 24 V, and are energised in the same way as =M09-K1 - directly from a PLC outlet. Brake valves =M07-Y2, =M07-Y3, =M07-Y4 are energised over interposing relay field =M07~A3. This relay field has 4 relais which act as amplifiers, as the valve current of brake valves is 2 A, and the PLC outlet only supplies 0,4 A. The contacts of the command switches (selector switches, press buttons, limit switches, pressure switches, master switch) set the respective PLC inlet to 24 V. The electronic oil level switch =M06-S4 has an NPN outlet which switches when the switch is submerged in oil. The p r ess u r e /1 emp e r a t u r e sensors =M07-B1 and -B2 transform the oil pressure and oil temperature into the equivalent electric current. At 0-600 bar, the pressure output value is 0-20 mA. Temperature output is from 0-20 mA, at 0° c the output current is 5 mA. This value rises or sinks by 1 mA for temperature changes of 10° C (e.g. 40° C= 9 mA). Besides directional contacts, the master switches are equipped with potentiometers. The potentiometers are supplied with 5 V, output voltage changes 3CC. to the angle of deflection from 0 to 5 V (0 v in zero position, 5 V at maximum deflection) .
You cannot post new topics in this forum You cannot reply to topics in this forum You cannot edit your posts in this forum You cannot delete your posts in this forum You cannot vote in polls in this forum You cannot attach files in this forum You cannot download files in this forum
KGW DOUBLE DECK CRANE EH 2x25t - 22m Lo-Ro Carrier
Language: english
Author: KRUPP FORDERTECHNIK
Genre: DOCUMENTATION
Publisher: KRUPP FORDERTECHNIK
Format: PDF
Quality: Scanned pages
Number of pages: 167
Description: DECK CRANE DOCUMENTATION COMPONENTS 7/8377 DOUBLE DECK CRANE EH 2x25t - 22m
DECK CRANE DOCUMENTATION I
1.0 DESCRIPTION OF ELECTRIC SYSTEM
1.1 Technical data
1.2 Supplies
1.3 Control
1.3.1 General
1.3.2 Double crane operation
1.3.3 Switchgear and sensors
1.4 Programmable logic control
1.4.1 Hardware
1.4.2 Software
1.5 Valve Current Generation
1.6 Fault Removal and Fault Announcement Device
1.7_ Emergency Operation
1.8 ftfte'ntenance
1.9 Wiring Diagrams Part-No. 2 350 154
2.0 SPARE PARTS LISTS - ELECTRIC SYSTEM
DECK CRANE DOCUMENTATION II
3.0 DESCRIPTION OF HYDRAULIC SYSTEM WITH DIAGRAM
3.1 SPARE PARTS LISTS - HYDR. SYSTEM WITH DIAGRAM
3.2 SPARE PARTS - HYDR. SYSTEM - COMPONENTS
3.3 SPARE PARTS DOCUMENTS -PURCHASED PARTS
Contents
DECK CRANE DOCUMENTATION COMPONENTS 7/8377 DOUBLE DECK CRANE EH 2x25t - 2 2m1.0 DECK CRANE DOCUMENTATION I
DESCRIPTION OF ELECTRIC SYSTEM •
1.1 Technical data
1.2 Supplies
1.3 Control
1.3.1 General
1.3.2 Double crane operation
1.3.3 Switchgear and Sensors
1.4 Programmable Logic Control
1.4.1 Hardware
1.4.2 Software
1.5 Valve Current Generation
1.6 Fault Removal and Fault Announcement Device
1.7 Emergency Operation
1.8 Maintenance
1.9 Wiring Diagrams Part - No. 2 350 154
1.1 TECHNICAL DATA
The crane's electrical equipment conforms to the pre -scriptions of the classification, societies.
It is designed for operation in ambient temperatures rang ing from -30° to +45°C.
SuppIV voltages
Main supply Auxiliary supply Control voltage
3/PEN 50 Hz, 380 V
2 50 Hz; 220 V
24 V =
Motor list
Pump drive : 2 X 125 kW - si, 4 poles
Feed oil pump : 2 x 9,0 kW - si. 4 poles
Machinery space fan : 2 x 1,3 kW - Si, 2 poles
Hydr. oil cooler : 2 x 0,9 kW - Si, 4 poles
Gear oil cooler : 2 x 0,37 kW - Si, 4 poles
In the description of the electrical equipment the assembly groups and components of the master crane are marked with an "M" (e .g. =M60-M1 : pump drive motor); for the
slave crane the same motor is described as =S60-M1.
The respective position in the master crane is marked with digit "I" (e.g. +A1.J : jib); in the slave crane with
digit "211; the jib position in the slave crane is designated by +A2.J.
The following description uses the master crane identifications .
1.2 SUPPLIES
Before starting any work on the crane's electrical equipment, all power supplies must be cut off and it must be checked that the installation is no longer live.
Power supply of the crane is ensured by a slipring body.
The 380 V - supply leads from the slipring body to the terminals of contactor =M05-K1 in the switch cubicle "star/delta control".
The 220 V - supply leads from the slipring body to the circuit breakers in cubicle "Distribution of lighting"
Contactor =M05-K1 acts as master switch and is actuated over switch SI in the door of cubicle "Star/delta con trol".
For this, the switch must be turned into "START" position. After releasing the switch, it will spring back to "1"-position. Before leaving the crane, this switch should be switched to " 0 "-position.
If the control levers are shifted before "readiness for operation" is signalled, fault monitor 06 responds and blocks crane operation. Depending on the oil temperature in the hoisting circuit, the machinery space fan and the hydraulic oil cooler are switched on and off during operation.
The crane is controlled by a Programmable Logic Controller (PLC). In the PLC digital input signals of the switchgear (contactor contacts, master switch contacts, limit switches etc.) and the analogue values of the speed setting transmitters control lever potentialme-ters) and of the sensors (pressure and temperature transformers) are worked off according to the software and the respective outlets of the PLC which switch on the signal lamps, contactors, or solenoid valves are energized. The PLC outlets give the calculated valve current value for adjustment of the pumps as a data record to the valve current control card.
Control voltage is 24 V D.C. , it is generated with the
3-phase current network bridge = M02-U1.
In addition a D.C. voltage of ±5 V is needed for feeding the reference value potentialmeters in the masters switched and the valve current control card. This D.C. voltage is generated with the electronic power supply M02-U2.
1.3 Control
1.3.1 Genera 1
The crane movements are carried out by hydraulic motors .
Control of these drives is electro-hydraulic. During operation the pump drive motor runs permanently at constant speed. Over a splitter gearbox it drives 3 hydraulic pumps which supply the hoisting, luffing and slewing gears. The pumps are controlled over electro-hydraulic energizing units with 2 proportional solenoid valves each.
Without an energizing signal the pumps run with zero stroke and do not deliver any oil. The solenoid valve amperage determines the direction of delivery and the delivery rate of the pumps. The valve current thus allows infinitely variable adjustment of the pumps (adjustment of the discharge rate); i.e. it allows controlling the speed of the respective drive.
The valve current ist abt. 200-600 mA.
A hydraulic variable displacement motor in the hoisting gear circuit allows moving less heavy loads of the empty hook at increased speed. This motor is controlled by a proportional solenoid valve of 200 - 600 mA. The
amount by which the motor is adjusted depends on the load on the hoisting gear which is picked up by a pressure sensor.
In addition to pump adjustment solenoid valves are energized for the brakes of the drives and the reversing valve for operation of the luffing and slewing gears.
- Please also refer to the description of the hydraulic system.
The cranes can be operated separately in single operation.
In double (GEMINI) operation the cranes are connected in parallel and controlled from the A-Tower (master crane). The drives are then synchronized.
In the description of the electrical system the guiding crane is called ’’master crane", the crane following is "slave". In the component list the cranes are designated with M of S respectively.
When pressure switch = M06-S12 (drives ON) is actuated, contactor = M61-K1 responds, starting feed oil pump. After 8 secs time relay = M09-K1 responds, starting the pump drive motor over contactors = M60-K1 and K2. This motor is started over star/delta. Change-overtime in 4-5 secs.
When the drive motor runs in delta and there is no fault announcement = M07-H4 (ready for operation) will light up and the crane can then be operated by shifting the control levers.
More information
1.3 Control1.3.2 Double crane operation
1. General remarks
2. Actuator energization
3 • Monitoring
4. Control
5. Adjusting the synchronism transmitters
1. General remarks
Both cranes can be controlled simultaneously from a single control station in the double crane mode. The motions of the two cranes are synchronized.
The crane column from which the cranes are controlled in the double crane mode is called the master crane. The other is the slave crane.
The two cranes can only be controlled from the master crane in the double crane mode. The slave crane control functions are blocked.
2. Actuator energization
The PLC program suppresses the command transmitters (joystick) outputs of the slave crane in the double crane mode. Only the "START" and "STOP" buttons retain their functions.
The control signals from the master crane joysticks are copied into the slave crane at the command level. Example:
If the hoisting joystick in the slave crane is moved in the direction "HOIST", 1ight-emitting diode (LED) 2.2 at the input of input card E02 lights up in the PLC unit, but no crane motion is initiated.
However, movement of the hoisting joystick in the master crane in the direction "LOWER" initiates the lowering motion in both cranes.
The PLC program copies the set points defined by the joystick potentiometers into the drive control system of the
slave crane in just the way as the control signals, so
both cranes are activated synchronously.
3. Monitoring
In the double crane mode, the PLC program connects the monitoring signals from both cranes in series. In other words, if the monitoring system triggers a function in one crane, the appropriate cut-outs are actuated on both.
Examples:
a) If an emergency OFF button is pressed in the master
or the slave crane, the main contactors immediately drop off in both the master and the slave crane.
1. 3 Control
1.3.2 Double crane operation
b) If a pressure switch monitoring the hydraulic system (e.g. M-S9, "Luffing gear pressure, master
orane") trips, the drives of both cranes are immediately switched off.
c) If a limit switch is approached, the contact of the first limit switch to be actuated stops the motion of both cranes.
4. Control
As described in chapter 2, both cranes are controlled synchronously in the double crane mode.
Since external factors and component tolerances can lead to loss of synchronism in the hoisting and luffing gears, these two systems are equipped with a distance monitoring system to check the synchronism of the cranes and re-adjust the drives in the event of discrepancies.
The exact position of the drive concerned is ascertained by distance sensors (potentiometers) in the limit switches. The analog input circuits of the PLC transform the potentiometer output voltages into digital values with a resolution of 12 bits.
In the computer program of the control system, the values representing the positions of the two luffing or hoisting gears are compared, i.e. the difference is calculated from the input data.
If the difference is less than 25, the program regards the positions as identical.
The double crane operation lamp (synchronism indicator) lights up if the luffing or hoisting gears respectively are in identical positions. The control system keeps trying to reduce the difference to zero during operation. It does this by increasing or reducing the desired value input (output from the joystick potentiometers) so that the leading (faster) crane is braked and the lagging
(slower) one is accelerated.
The magnitude of the correction values varies with the magnitude of the discrepancy. Minor discrepancies lead to small correction values, which increase in 10 mA increments up to the maximum correction of ±25 % of the desired value input.
If the value of the discrepancy is larger than 50, for
instance due to a drive fault, the drives are gradually
braked and the synchronism indicator goes out. If the discrepancy is greater than 70, the drive stops
immediately (emergency STOP). The fault message "48" or "49" is shown on the fault display in either case.
1.3 Control
1.3.2 Double crane operation
5. Adjusting the synchronism transmitters
Readjust the* synchronism transmitters if the neutral point of the synchronism control system for the double crane mode has changed (e.g. if the hook spreader is not horizontal).
See the description of fault signals 48 and 49 for identification of asynchronous control states.
The procedure for readjusting the luffing gear synchronism transmitters is described below. The procedure for hoisting gears is analogous.
The reference point (RP) for voltage measurements is ±0 V of the DC supply voltage.
1. Luff both jibs into their highest positions (minimum outreach). The two jibs must be parallel to each other.
2. Measure the voltages at the outputs of adjustment resistors RIO and R12*. They should be between 10 and 12 V and must be identical. Adjust RIO or R12 if they are not.
3. Measure the output voltages of the synchronism transmitters (potentiometers in limit switches) at MX5-195 and MX5-117 on page =M07. Sh. 11 and 12. The voltages should be about 0.5 V. If they are not, adjust them by turning the potentiometer casing.
If the voltages differ greatly from 0.5 V, repeat the procedure described in point 2 above after rough adjustment of the potentiometers.
The two potentiometer output voltages now have to be balanced (fine adjustment).
Their absolute value (about 0.5 V) is relatively uncritical, but it is important that both potentiometer voltages are identical, for instance 0.487 V. Measure this voltage at the potentiometer itself, i.e. between terminals 11 and 12.
The output voltages are adjusted by slowly turning the potentiometer casings.
Remember that the voltage can change when the casing is tightened. If this happens, it must be readjusted again.
4. Now luff both jibs out to maximum outreach. The two jibs must again be parallel to each other.
5. Measure the synchronism transmitter output voltages at MX5-195 and MX5-117. Use adjustment resistors RIO and R12 to vary these voltages until they are exactly equal. Their value must not exceed 9.5 v.
6. Close the casing of the limit switch. The synchronism transmitters are not correctly set.
*On drawing sheet =M07. Sh. 11 and 12
1.3 CONTROL
1.3.3 SWITCHGEAR AND SENSORS
The power switchgear consists of the contactors =M05~Kl (mains contactor) , =M60-K1 (star contactor) , and =M60-K2
(delta contactor).
These contacts have a control voltage of 380 V.
=M05~K1 is actuated directly from master switch SI (in series with the EMERGENCY-OFF chain) .
=M60-K1 and K2 are switched over time relay =M09-K1. Contactors =M61-K1 and =M6 5-K1 have a control voltage of
24 V, and are energised in the same way as =M09-K1 -
directly from a PLC outlet.
Brake valves =M07-Y2, =M07-Y3, =M07-Y4 are energised over interposing relay field =M07~A3. This relay field has 4 relais which act as amplifiers, as the valve current of brake valves is 2 A, and the PLC outlet only supplies 0,4 A.
The contacts of the command switches (selector switches, press buttons, limit switches, pressure switches, master switch) set the respective PLC inlet to 24 V.
The electronic oil level switch =M06-S4 has an NPN outlet which switches when the switch is submerged in oil.
The p r ess u r e /1 emp e r a t u r e sensors =M07-B1 and -B2 transform the oil pressure and oil temperature into the equivalent electric current. At 0-600 bar, the pressure output value is 0-20 mA.
Temperature output is from 0-20 mA, at 0° c the output
current is 5 mA. This value rises or sinks by 1 mA for temperature changes of 10° C (e.g. 40° C= 9 mA).
Besides directional contacts, the master switches are equipped with potentiometers.
The potentiometers are supplied with 5 V, output voltage changes 3CC. to the angle of deflection from 0 to 5 V (0 v in zero position, 5 V at maximum deflection) .
KGW DOUBLE DECK CRANE EH 2x25t - 22m для Lo-Ro carrier.pdf
Download [19 KB]
Share